[=̵]ѱ =ֱô һ ī ڸűϱ ϰ ִٰ 14 .
, 2014 207븦 ϰ, ι° Ҹ ϴ Ÿ õ ռ ġ ַ ȹ̴.
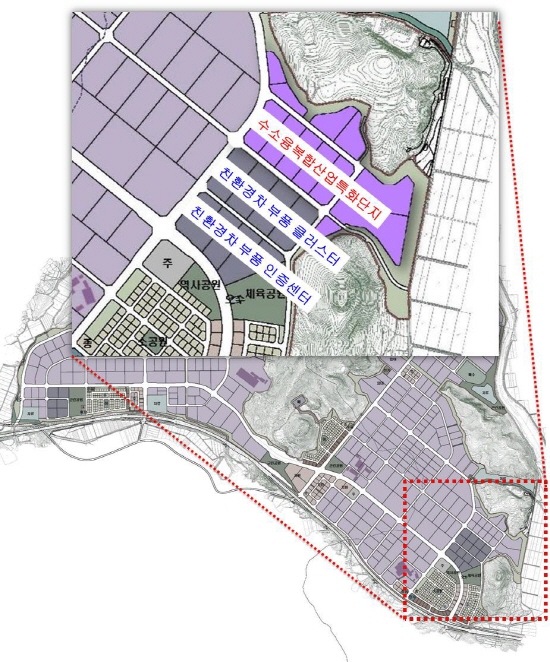
Ư, һ ǰ ġ ġ ̷ Ÿ ߱, ڸ â Ѵٴ ȹ̴.
غ 2025 ڵ ․ Ưȭ ӵ .
․ Ưȭ һ ֱ ǰ , һ, ķ۽, һ÷Ʈ, , ҿü ú ܰ Ȯ ȹ̴.
̵ Ưȭ ġǸ п ҿ ߿ ǰ , һ , һ ǰ ñ °踦 ϰ һ ÷μ , Ĺ һ ָ ߽ ȴ.
̿ Բ ģȯ ǰ Ŭ, ģȯ ǰ Ϳ͵ ֽ ̷ Ÿ Ѵٴ ȹ̴.
ֽô һ 굵 ȯ 2016 ڵ굵 ε ȹϰ , Դ.
Ҵ ȭ ԵǴ Ϳ ǰ ȭ 2016 ․ ս̼ ȭ ̴. ǰ ȭ ȴ.
ֽÿ ܰ 2 Ҹ ̸ Ӿϵ ̴.
ֱ, 74000 Ưȭ |
| 2018-11-14() 18:22 |
|
|
![]() |
| ||||||||||
|

2026.03.02() 13:11






























